Trilocale in vendita

Roma, Via Ferdinando Maria Poggioli - Vigne Nuove
€ 218.000
3 locali 3 locali
78 Mq 78 Mq
2 bagni 2 bagni

Trilocale in vendita

Roma, Via Ferdinando Maria Poggioli - Vigne Nuove

Descrizione annuncio

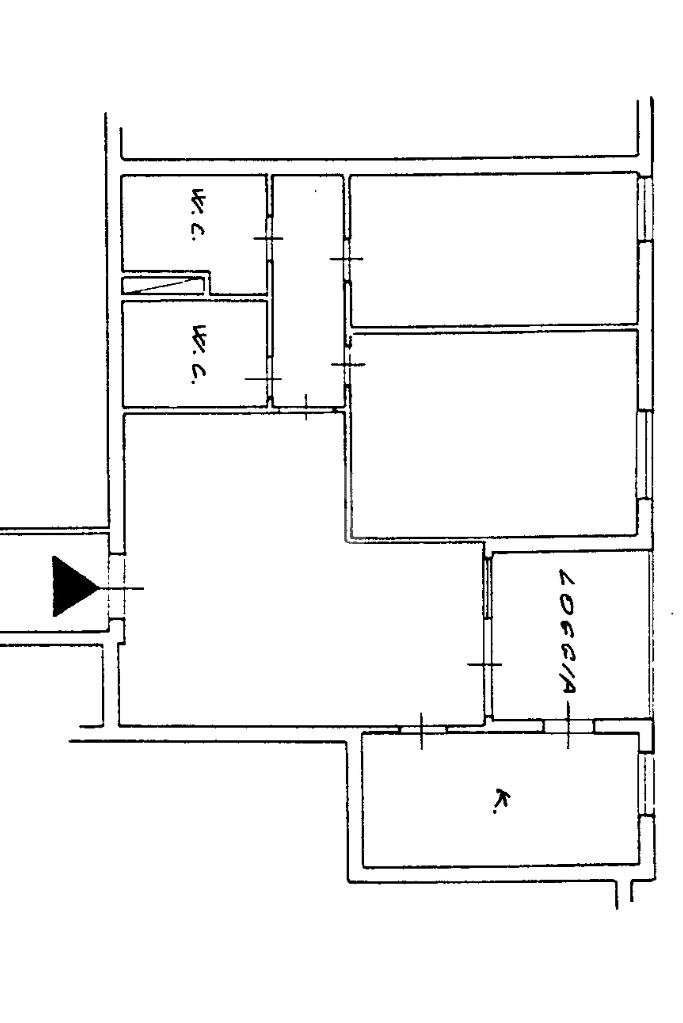
VIGNE NUOVE – VIA FERDINANDO MARIA POGGIOLI: In un contesto residenziale e tranquillo, immerso nel verde, adiacente ai beni di prima necessità e vicino al GRA e al CC PORTA DI ROMA, proponiamo la vendita di un comodo trilocale posto al penultimo piano, in una palazzina edificata nei primi anni ’80, dalla facciata metà in tinta metà in cortina, in uno stabile di 14 piani con ascensore.

Accedendo all’ appartamento troviamo un ingresso con ampio soggiorno a vista con angolo sala da pranzo e accesso al bacone, cucina abitabile, disimpegno, camera matrimoniale, camera da letto, bagno con vasca e un secondo bagno con box doccia.

L’immobile, con alcune piccole rifiniture effettuate nel corso degli anni come la sostituzione degli infissi, nuovi, in pvc finto legno doppio vetro, condizionatore in soggiorno, porta blindata si presenta in buono stato interno. Inoltre lo stabile è arricchito da un giardino a solo uso esclusivo dei condomini.

A completare la proprietà un comodo posto auto coperto al piano s1.

Ottima esposizione ad ovest e affaccio libero donano all’immobile un’ottima luminosità.

Le spese condominiali ordinarie ammontano ad € 80,00 al mese , in quanto il riscaldamento è autonomo.

N B L’edificio è stato costruito su un’area in diritto di superficie e il ROGITO potrà essere effettuato subito senza nessun tempo di attesa poiché la pratica di affrancazione è stata risolta.

Questa soluzione abitativa rappresenta un'opportunità interessante per chi cerca una residenza in una zona ben servita e collegata.

3 MOTIVI PER SCEGLIERLO:

-AFFACCIO LIBERO

-POSTO AUTO

-CONTESTO RISERVATO E SERVITO

N B TUTTE LE INFORMAZIONI IVI CONTENUTE COMPRESE LE METRATURE SONO DA INTENDERSI PURAMENTE A TITOLO INDICATIVO E NON COSTITUISCONO ELEMENTO CONTRATTUALE.

Mostra tutto

Nelle vicinanze

Trasporto pubblico Trasporto pubblico
Jonio
Jonio
1,6 Km
Conca d'Oro
Conca d'Oro
2,3 Km
Nuovo Salario
Nuovo Salario
2,2 Km
Val d’Ala
Val d’Ala
2,5 Km
Vigne Nuove/Segni
Vigne Nuove/Segni
40 m
Ricariche auto elettriche Ricariche auto elettriche
Enel X Casal Boccone
830 m
IKEA Porta di Roma
1,6 Km
Eneldrive Ojetti
2,1 Km
Scuole Scuole
Scuole
330 m
Scuola Rina De Liguoro
470 m
Suola Materna e Primaria Paritaria Maria Ausiliatrice
490 m
Istituto Tecnico Cristoforo Colombo succursale
510 m
Scuola Santa Maria Ausiliatrice
560 m
Farmacia Farmacia
Piramide
460 m
Farmacia Dott. Valentini
760 m
Farmacia Iurlo
790 m
Ateneo
960 m
Farmacia
1,1 Km
Ospedali Ospedali
Villa Tiberia
2,3 Km
Supermercati Supermercati
Tigre
80 m
Supermercati
150 m
Pewex
210 m
Lidl
420 m
Unicoop Tirreno
870 m
Negozi Negozi
Bernardi
100 m
Celiachia Store
1,0 Km
Alimentari Campisano
1,1 Km
Nicol
1,1 Km
Sapori di pane
1,1 Km
Bar Bar
Caffè In Piazza
1,0 Km
Il Break Del Paradiso
1,4 Km
Australian Bar
1,7 Km
Bar Di Gennaro
2,1 Km
Bar siciliano
2,1 Km
Ristoranti Ristoranti
Izakaya
480 m
El dorado
480 m
Panizzeri
900 m
Carpe Diem
970 m
New Green Hill
990 m
Mostra tutto

Caratteristiche

Rif.:
61158475
Piano:
13 di 14 con ascensore (Piano alto)
Posti auto:
1
Balconi:
1
Camere da letto:
2
Arredamento:
Parziale
Mostra tutto
Prezzo Prezzo
€ 218.000
Rata mutuo Rata mutuo
€ 1.027 / mese
Spese annue Spese annue
€ 960
Proponi il tuo prezzoProponi il tuo prezzo

Classe Energetica

F
F
F
F
F
F
F
F
F
EP globale non rinnovabile:
96.81 kW h/m² anno
EP globale rinnovabile:
0.86 kW h/m² anno
EP invernale del fabbricato:
EP estiva del fabbricato:
Anno di costruzione:
1985
Riscaldamento:
Autonomo
Tipo impianto:
A radiatori
Tipo alimentazione:
Metano

Ti interessa visionare l'immobile?

Fissa un appuntamento  Fissa un appuntamento

Richiedi informazioni

Clicca su Leggi per aprire l'informativa
* Questi campi sono obbligatori

Calcola il tuo mutuo

Semplice e senza impegno
Anticipo

( % )
Mutuo

( % )

pochi semplici passi

inserisci i tuoi dati
Questionario completato
Grazie per aver richiesto un appuntamento senza impegno con un nostro Consulente del Credito e Assicurativo.

Hai inserito correttamente tutti i dati necessari e a breve riceverai una e-mail con un link da convalidare per inviare i tuoi dati.
Affiliato
Vigne Nuove Srl
Via delle Vigne Nuove, 88 00139 Roma (RM)

Il nostro staff


  • Federica Confuorto
    Collaboratrice

  • Valentina Confuorto
    Coordinatrice

  • Luigi Licciardi
    Collaboratore

  • Emilio Lisella
    Affiliato

  • Darwin Fernando Mora Cardona
    Collaboratore

  • Chiara Zacchilli
    Coordinatrice
Via delle Vigne Nuove, 88 00139 Roma (RM)
Zona: Talenti-Vigne Nuove-Bufalotta
Mostra su mappa
Orari: DAL LUNEDI AL VENERDI matt.09.00-13.00 pom.15.00-20.00 SABATO 09.00-13.00 pom.15.00-19.00 Domenica su appunt. 09.30-12.30
Affiliato
Vigne Nuove Srl
Via delle Vigne Nuove, 88 00139 Roma (RM)

2026 Tecnocasa Franchising S.p.A. - P. IVA 08365160152 - Via Monte Bianco 60/A 20089 Rozzano (MI). Ogni agenzia ha un proprio titolare ed è autonoma. Privacy policy | Policy utilizzo | Cookie policy